Mẫu thiết kế nhà cấp 4 đẹp như biệt thự dưới đây vừa mang phong cách hiện đại vừa có những nét rất truyền thống với mái ngói đỏ. Hiện nay, các mẫu nhà cấp 4 đẹp 1 tầng đang là lựa chọn của rất nhiều gia đình ở cả nông thôn và thành thị. Dưới đây là bản vẽ nhà cấp 4 mang vẻ đẹp của 1 mẫu thiết kế biệt thự đẹp, mời các bạn tham khảo.

Vẻ đẹp và ngoại thất của mẫu thiết kế nhà cấp 4 đẹp Mẫu thiết kế nhà cấp 4 mang phong cách hiện đại với kiểu mái thái, kết hợp với hệ thống hiên và sân vườn truyền thống để tạo cảm giác thân quen và gần gũi. Các đường phào, gờ chỉ được lựa chọn với sống lượn vừa phải và phù hợp với từng vị trí, quán triệt phương châm đơn giản, đúng, đủ và đẹp.

Kiến trúc sư khá tinh tế khi thiết kế hệ thống bậc tam cấp và hệ thông trụ cột chính trước hiên được ốp đá đẹp mắt. Bồn hoa tiểu cảnh 2 bên hiên vừa có tác dụng tăng tính thẩm mỹ, vừa tạo không gian thoáng mát cũng như cân đối với tổng thể sân vườn chung của mẫu biệt thự cấp 4.
Ngôi nhà toát lên sự sang trọng, bề thế và vững chãi. Màu sắc ngoại thất được phối hợp ăn ý, giúp mẫu thiết kế nhà trở nên nổi bật hơn hẳn. Mái ngói đỏ đi cùng với gam màu trắng có tác dụng tương hỗ cho nhau, màu sắc tuy quen thuộc nhưng không lẫn vào đâu so với những mẫu nhà bên cạnh.

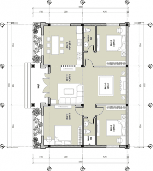
Từ phòng khách đi về 2 hướng, phía tay phải được thiết kế 2 phòng ngủ tiếp giáp liền kề với nhau. 2 nhà vệ sinh chung được thiết kế ở giữa phòng ngủ và thông với phòng khách, do đó rất thuận tiện cho việc đi lại cũng như di chuyển. Bên tay trái từ phòng khách đi vào là không gian bếp nấu và phòng ăn, một phòng ngủ có diện tích khá rộng được thiết kế ngay bên cạnh có lối thông với phòng khách và phòng thờ, nhà vệ sinh chung được đặt ở giữa phòng ngủ và phòng bếp.

Với những đường nét hiện đại kết hợp với những yếu tố mang hơi hướng truyền thống, nhà đẹp này là không gian sống đẹp và tiện nghi của gia đình anh Mạnh. Chỉ với kinh phí không quá cao, gia đình bạn cũng có thể sở hữu bản vẽ thiết kế cho căn nhà mơ ước. Hãy cùng Kiến Tạo Việt hiện thực hóa mơ ước của bạn.